表面现象以及表面变化过程是自然界普遍存在的。在工程领域,几乎所有的零部件都不可避免要与环境接触,而与环境直接接触的正是零部件的表面。表面在于环境相互作用地过程中,往往会发生腐蚀、磨损、氧化、浸蚀,从而引发零部件飙升发生破坏或失效,进而引起零部件的破坏或失效。因此,表面是防止设备失效的第一道线。表面工程是指表面预处理后,通过表面强化、表面改性或多种表面工程技术复合处理,改善固体金属表面或非金属表面的形态、化学成分。组织结构以及应力状态,以获得所需表面性能的系统性工程。
金属表面强化技术
01 表面形变强化
表面形变强化是通过机械手段(滚压、喷丸等)在金属表面产生压缩变形,使表面形成硬化层,形变硬化层深度可达0.15-1.5mm,表面形变强化的方法主要有:喷丸强化、表面滚压技术、孔挤压强化。压缩过程中,形变硬化层中将产生以下两种变化:
(1)从组织结构上看,强化层内位错的密度极高,晶格的畸变度大,在交变应力的作用下,符号相反的位错相遇后会相互抵消,符号相同的位错将重新排列。此时,强化层内位错密度虽有下降,但会逐渐形成更加细小的亚晶粒。
(2)从应力状态上看,由于表层与内层的金属变形程度不平衡,表层金属向四周塑变延伸时,会受到内层金属的阻碍,在强化层内形成了较高的宏观残余压应力。
1 喷丸强化
喷丸强化,又称受控喷丸强化,是将高速弹丸流喷射到零件表面,使零件表层发生塑性变形,从而形成一定厚度的强化层,由于零件表面压应力的存在,当零件承受载荷时可以抵消一部分应力,从而提高零件的疲劳强度。喷丸强化如图1所示。

图1 喷丸强化过程示意图
在室温下利用高速喷射的细小硬质弹丸打击工件表面,使表面层在再结晶温度下产生弹性、塑性变形,如图2所示,并呈现较大的残余压应力,因为当每颗钢丸撞击金属零件上,宛如一个微型棒褪敲打表面,捶出小压痕或凹陷。为形成凹陷,金属表层必定会产生拉伸。表层下,压缩的晶粒试图将表面恢复到原来形状,从而产生一个高度压缩力作用下的半球,无数凹陷重叠形成均匀的残余压应力层,从而提高表面疲劳强度和抗应力腐蚀的能力。

图2 喷丸表面得塑性变形
喷丸也可以用来清除厚度不小于2mm或不要求保持准确尺寸及轮廓的中型、大型金属制品以及铸锻件上的氧化皮、铁锈、型砂及旧漆膜,是表面涂(镀)覆前的一种清理方法。喷丸强化是一个冷处理过程,它被广泛用于提高长期服役于高应力工况下的金属零件,如飞机引擎压缩机叶片、机身结构件、汽车传动系统零件等的抗疲劳属性。
喷丸按射出弹丸的速度分为普通喷丸和超音速表面喷丸,超音速喷枪射出的弹丸速度为300~500m/s,并随着零件的转动,可实现对整个零件表面的喷丸强化。
(1)喷丸强化的设备
按驱动弹丸的方式,可将喷丸强化机分为机械离心喷丸机和气动喷丸机两大类。此外喷丸机又有干喷和湿喷之分,干喷式喷丸机工作条件差,湿喷式喷丸机是将弹丸混合成悬浮状,然后喷出弹丸,因此工作条件有所改善。
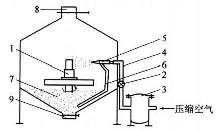
①机械式离心喷丸机弹丸在高速旋转的叶片和叶轮离心力的作用下被加速抛出。该型喷丸机喷丸功率小,制造成本高,主要用于喷丸强度高、品种少、批量大、形状简单、尺寸较大的工件,如图3所示。

1-叶轮;2-叶轮转向;3-接触叶片前的弹丸;
4-弹丸输送管;5-漏斗;6-压缩空气;7-喷射管;
8-90°弯曲喷管;9-弹丸
图3 机械离心式喷丸机
②气动离心喷丸机以压缩空气为驱动力,将弹丸加速到较高速度后,随后弹丸撞击工件的受喷表面。该型喷丸机可通过控制气压来控制喷丸强度,操作灵活,一台机器可喷多个零件,适用于喷丸强度低、品种多、批量小、形状复杂、尺寸较小的零部件,但功耗大、生产效率低,如图4所示。

1-零件;2-阀门;3-空气过滤器;4-管道;
5-喷嘴;6-导丸管;7-储丸箱;8-排尘管;9-转换口
图4 气动离心式喷丸机
(2)弹丸的种类
钢丝线切割丸:常用钢丝直径d=0.4~1.2mm,硬度以45~50HRC为最佳,组织最好是回火M或者B。
铸钢丸:弹丸尺寸为0.2~1.5mm,经退火处理,硬度为30~57HRC,易碎,耗量大,但价格便宜。铸钢丸的品质与含碳量有关,一般含碳量在0.85%~1.2%,锰含量在0.65% ~ 1.2%。
玻璃弹丸:含60%的SiO?,硬度为46~50HRC,脆性大,适用于零件硬度低于弹丸的硬度的场合。
陶瓷弹丸:弹丸硬度高,但脆性大,喷丸后可获得较高的残余压应力。
液态喷丸:包括SiO?颗粒和Al?O?颗粒。喷丸时用水混合SiO?颗粒,利用压缩空气溅射。
2 表面滚压技术
表面滚压技术是在一定压力作用下,滚球或辊轴对被加工零件表面进行滚压或挤压,使其发生塑性变形,形成强化层的工艺过程,如图5所示。

图5 表面滚压强化示意图
表面滚压技术的表面改性层深度可达到5mm以上,仅适用于一些形状简单的平板类零件、轴类零件和沟槽类零件等,对形状复杂的零件表面无法应用。表面滚压技术具有很多无法比拟的优点,如表面滚压技术仅改变了材料的物理状态,并未改变材料的化学成分;表面滚压技术采用的工具和工艺比较简单,加工效率高;滚压滚压技术是一种无切削加工工艺,在加工过程中不会产生废屑、废液,对环境的污染少,符合“绿色制造”的发展理念。此外,表面滚压技术可消除零件表面因切削加工引起的拉应力,并使零件表面处于压应力状态,残余的压应力既可以使裂纹尖端闭合又可以抑制裂纹尖端的扩展,从而进一步提高零件的疲劳寿命,该技术在工业中得到了广泛的应用,产生了巨大的经济效益。
(1)作用机理
①微观组织机理。经过切削加工之后,金属的表面都残留有刀具的切削痕迹,在微观下观察可以看见金属的表面呈现出凹凸不平之状。滚压加工是一种压力光整加工,在滚刀的作用下金属表面会发生强烈的塑性变形。根据工程材料的相关理论,金属发生塑性变形的基本方式是滑移,即晶体沿某一晶面和晶向相对于另一部分发生相对滑移。在外力的作用下,晶体不断滑移,晶粒在变形过程中逐步由软取向转动到硬取向,晶粒之间互相约束,阻碍晶粒的变形。由于工业所用金属多为多晶体,故金属能承受较大的塑性变形而不会被破坏。金属内部晶粒的不断滑移会使得晶粒的位错密度增加、晶格发生畸变,符号相反的位错相互抵消,符号相同的位错则重新排列行成更加微小的亚晶粒。晶粒越细小,位错密度越高,产生的变形分散就越多,因而不易产生局部的应力集中,使得滚压后的金属材料的屈服强度和疲劳性能得到显著提高。
②表面质量机理。金属表面质量的好坏常用表面粗糙度来衡量,表面粗糙是造成应力集中的主要因素之一,粗糙的表面易形成尖端切口,造成应力集中,而疲劳源则往往出现在应力集中处,在交变应力的作用下,应力集中促使疲劳裂纹的形成和扩展。表面越粗糙、尖端切口越尖锐,应力集中就越严重。滚压强化就是利用滚轮对工件表面的滚压作用,使工件表层金属产生塑性流动,填入到原始残留的低凹波谷中,从而降低工件表面的粗糙度,消除残留刀痕,减少应力集中,进而提高工件的疲劳寿命。
③残余压应力机理。早在20世纪30年代人们就发现,让零件表面产生残余压应力可以延长工件的疲劳寿命。金属材料表面的裂纹扩展的条件是外加交变载荷达到某一界限(即应力强度达到材料本身的临界应力强度时)。而滚压则可以减少表面原有的微观裂纹,还可以产生残余压应力,从而提高零件的疲劳寿命。
(2)影响滚压效果的工艺参数
影响表面滚压效果的工艺参数主要有:滚压力、滚压次数和滚压速度等。滚压力即为滚轮压到工件表面上的力,其对工件的疲劳强度有很大的影响,但目前对其研究还不够成熟,没有数学公式能够准确地计算出最佳滚压力。最佳滚压力还与零件本身强度、零件尺寸、滚轮直径等因素有关,生产中则是通过工艺试验来确定最佳滚压力;滚压次数即为滚轮压过工件同一位置的次数,它对工件的疲劳强度有很大影响,次数较少时,工件表面未能达到应有的塑性变形,次数较多时,工件会产生接触疲劳,严重时会使表面脱落;滚压速度即为滚压加工时工件的转动速度,其对工件的疲劳强度影响不大,但影响滚压加工的效率,若转速过高,则会引起较大的塑性变形,转速过慢又会降低生产效率。在生产中需要根据实际情况来确定合适的滚压速度。
(3)孔挤压强化
孔挤压强化是利用特定的工模具(棒、衬套、开合模具等)对工件的孔壁或周边进行连续、缓慢、均匀的挤压,使其形成一定厚度的塑性变形层,达到提高表面疲劳强度和抗应力腐蚀能力的一种表面强化工艺。
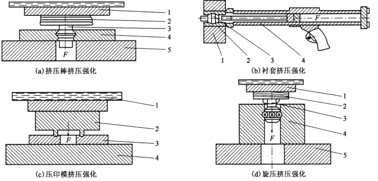
常采用的工艺方法:棒挤压、衬套挤压、压印模挤压、旋压挤压,如图6所示。

(a)1-液压机;2-夹头;3-挤压棒;4-零件;5-底座
(b)1-零件;2-衬套;3-挤压棒;4-拉拔枪
(c)1-液压机;2-压印模;3-零件;4-底座
(d)1-孔臂钻;2-夹头;3-挤压头;4-零件;5-底座
图6 孔挤压强化的工艺方法
孔挤压强化主要针对内孔有抗疲劳要求或其他方法无法实现的工件,如飞机上的重要零件;压印模挤压适用于大型零件及蒙皮等关键承载件的强化;旋压挤压适用于起落架等大型零件的内孔强化等。
02 等离子体扩渗技术
等离子体是由大量的自由电子和离子组成且在整体上表现为近似电中性的电离气体。等离子化学热处理技术,又称等离子体扩渗技术(PDT)或粒子轰击扩渗技术,是利用低真空环境中气体辉光放电产生的离子轰击工件表面,使金属表面成分、组织结构及性能发生变化的工艺过程。
与普通气体热扩渗技术相比,离子热扩渗具有如下特点:
(1)离子轰击溅射将会去除工件表面的氧(钝)化膜或杂质,提高工件表面活性,使其易于吸附被渗元素,加快热扩渗速度;
(2)等离子体可激活反应气体,降低化学反应温度;
(3)可通过调节工艺参数控制热扩渗层的组织以及渗层的厚度;
(4)对环境无污染,是一种环境友好型的处理工艺。
等离子体可分为高温等离子体和低温等离子体。极光、日光灯、电弧、碘钨灯等属于低温等离子体,聚变、太阳核心等属于高温等离子体。
低温等离子体(也称非平衡等离子体)中的重粒子温度接近常温,而电子温度高达10?~10?K。
使气体由绝缘体变成导体的现象称为气体放电。气体放电的条件是:有一定的电场强度;气体中存在带电粒子。
在电场中,带电粒子发生定向运动。带电粒子与气体原子、带电粒子与电极之间发生一系列的物化变化,即带电粒子之间发生碰撞引起气体激发和电离;碰撞使原子中的电子从正常能级跃迁到较高能级,变成亚稳态的受激原子;受激电子返回基态时,将能量以光子的形式释放出来(辉光),若带电粒子撞击的能量较大,可能会将原子中的某个电子撞离原子(电离)。
1 离子渗氮的机理
(1)Kolbel离子溅射渗氮模型
高能氮离子轰击阴极使Fe原子溅射出阴极表面,Fe原子与N原子结合形成FeN,并重新沉积在工件表面(背散射),处于亚稳态的FeN按FeN→Fe-N→Fe N的顺序依次分解,分解出的活性N原子渗入钢的表面或近表面,同时钢表面从外到内形成由Fe - N(ε相)和Fe N(γ‘相)的渗氮层。如图7所示。

图7 Kolbel离子溅射渗氮模型
(2)新的离子渗氮模型
新的直流离子渗氮模型如图8所示,离子渗氮装置如图9所示。

图8 新的直流离子渗氮模型

1-直流电源;2-真空室;3-工件;4-温控仪;
5-真空计;6-真空泵;7-流量计;8-供气系统
图9 离子渗氮装置示意图
2 离子渗氮工艺过程
(1)将清洗好的工件放入离子渗氮炉内,抽真空至1Pa左右;
(2)通入少量含氮气体,接通直流高压电源,使气体产生辉光并放电;
(3)溅射、净化被处理工件表面;
(4调整气压和电压,将工件加热到所需要的处理温度,开始渗氮;
(5)保温一定时间,达到渗氮层要求的厚度;
(6)断电、工件在真空中冷至200℃以下,出炉渗氮后的工件表面呈银灰色。
3 离子渗氮的组织类型及影响因素
在小于590℃(共析温度)的温度环境下进行渗氮,随着氮势的增加,渗氮层的组织自外向内依次为:ε→ε+γ’→γ‘+扩散层→α扩散层,如图10所示。

图10 38CrMoAl钢渗氮后表面组织形貌(560℃×5h)
影响离子渗氮层的主要因素如下:
(1)渗氮温度:随温度升高,渗层厚度增加。当温度<550℃,γ’相比例随温度提高而增加;当温度>550℃后,ε相比例随温度提高而增加。
(2)渗氮时间:渗氮初期(<30min)渗速远大于气体渗氮速度,随时间延长,渗速减慢,逐渐接近气体渗氮速度。
(3)渗氮气体:常用的有氨、氮气+氢气等。
(4)渗氮气压、电压和电流密度:气压越大,渗氮层越厚;放电功率越大,渗氮层越厚;电流密度越大,渗氮层越厚。
4 离子渗氮层的性能
评价离子渗氮层的性能的指标主要包括以下几个方面:
(1)硬度:渗氮层的硬度取决于渗氮温度、钢中合金元素种类和钢种。
(2)疲劳强度:渗氮可以提高工件的疲劳强度,并随扩散层厚度的增加而提高。
(3)韧性:渗氮层中,仅有扩散层的部分韧性最好,有单相化合物层(ε相或γ‘相)的次之,γ'+ε相混合相的最差。
(4)耐磨性:与其他渗氮方法相比,离子渗氮对滚动摩擦的耐磨性最好。
常用钢种的离子渗氮工艺见表1。
表1 常用钢种的离子渗氮工艺

03 激光表面处理技术
激光表面处理技术是指利用激光束特有的性能特点,对材料表面进行处理并形成一定厚度的处理层,可以显著改善材料表面的力学性能、冶金性能、物理性能,从而提高零件、工件的耐磨、耐蚀、耐疲劳等性能,是一种高效且成熟的表面处理技术。
1 特点
(1)激光束处理后,材料表面的化学均匀性很高,晶粒细小,因而表面硬度高,耐磨性好,在不损失韧性的情况下获得了高的表面性能。
(2)输入热量少,热变形小。
(3)能量密度高,加工时间短。
(4)处理部位可以任意选择,如深孔、沟槽等特殊部位均可采用激光进行处理。
(5)工艺过程无需真空,无化学污染。
(6)激光处理过程中,表层发生马氏体转变而存在残余压应力,提高了其疲劳强度。
2 激光表面处理设备
激光表面处理设备包括:激光器、功率计、导光聚焦系统、工作台、数控系统和软件编程系统。
3 激光表面处理技术的原理及特点
激光是一种相位一致、波长一定、方向性极强的电磁波,激光束是由一系列反射镜和透镜来控制,所以激光束可以聚焦成直径很小的光束(直径只有0.1mm),从而可以获得极高的功率密度(10?~10?W/cm?)。按激光强度和辐射时间可将激光与金属之间的互相作用分吸收光束、能量传递、金属组织的改变和激光作用的冷却等阶段。
激光表面处理技术是采用大功率密度的激光束,以非接触性的方式加热材料表面,依靠材料表面自身的导热性达到冷却的目的,从而实现其表面强化的工艺方法。它在材料加工中的如下优点:
(1)能量传递方便,可以对被处理工件表面进行有选择性的局部强化;
(2)能量作用集中,加工时间短,热影响区小,激光处理后,工件变形小;
(3)能够处理表面形状复杂的工件,且容易实现自动化;
(4)改性效果比普通方法更显著,速度快,效率高,成本低;
(5)通常只能处理一些薄板金属,不适宜处理较厚的板材。
4 激光表面处理后的组织类型
由于激光加热速率极快,相变过程是在很大的过热度下进行的,所以晶核的形核率很大。因加热时间短,碳原子的扩散及晶粒的长大均受到限制,所以得到的奥氏体晶粒较小。冷却速率也比使用任何淬火剂都快,因而易得到隐针或细针马氏体组织。通过对组织类型的观察,可将激光束处理后的钢表面进行区分,低碳钢可分为两层:外层是完全淬火区,组织是隐针马氏体;内层是不完全淬火区,保留有铁素体。中碳钢可分为四层:外层是白亮的隐针马氏体,硬度达800HV,比一般淬火硬度高出100以上;第二层是隐针马氏体加少量屈氏体,硬度稍低;第三层是隐针马氏体加网状屈氏体,再加少量铁素体;第四层是隐针马氏体和完整的铁素体网。高碳钢也可分为两层:外层是隐针马氏体;内层是隐针马氏体加未溶碳化物。铸铁大致可分为三层:表层是熔化一凝固所得的树枝状结晶,此区随扫描速度的增大而减小;第二层是隐针马氏体加少量残留的石墨及磷共晶组织;第三层是较低温度下形成的马氏体。
5 激光表面处理技术的分类
(1)激光相变硬化
激光相变硬化又称激光淬火,是指以高能密度的激光束照射工件表面,使得需要硬化的部位瞬间吸收大量光能,并将其立即转化为热能,从而使激光作用区的温度急剧上升,组织类型迅速转变为奥氏体,经快速冷却后,获得极细小马氏体和其他组织,其特点如下:
①材料表面可高速加热和高速自冷。加热速度可达10?~10?℃/s,冷却速度可10?℃/s,这就有利于提高扫描速度及生产效率。
②激光淬火处理后的工件表面硬度高,一般来说比常规淬火硬度高5%~20%,处理结束后可获得极细的硬化层组织。
③由于激光加热速度快,因而热影响区小,淬火应力及变形小。一般认为激光淬火处理几乎不产生变形,而且相变硬化可以使表面产生大于4000MPa的压应力,有助于提高零件的疲劳强度;但厚度小于5mm的零件其变形仍不可忽视。
④可以对形状复杂的零件以及不能用其他常规方法处理的零件进行局部硬化处理,如具有沟槽的零件。
⑤激光淬火工艺周期短,生产效率高,工艺过程易实现计算机控制,自动化程度高,可纳入生产流水线。
⑥激光淬火依靠自身的导热性,由表及里的传导自冷,无需冷却介质,对环境无污染。
(2)激光表面熔敷激光表面熔敷是在激光束作用下将合金粉末或陶瓷粉末与基体表面迅速加热并熔化,当光束移开后自冷却的一种表面强化方法。其特点如下:
①冷却速度快(高达10?℃/s),组织具有快速凝固的典型特征;
②热输入和畸变较小,涂层稀释率低(一般小于5%),与基体呈冶金结合;
③粉末选择几乎没有任何限制,特别是低熔点金属表面熔敷高熔点合金;
④能进行选区熔敷,材料消耗少,具有卓越的性能价格比;
⑤光束瞄准可以使难以接近的区域熔敷;
⑥工艺过程易于实现自动化。
(3)激光表面合金化
激光表面合金化是指在高能量激光束的照射下,使基体材料表面薄层与外加合金元素同时快速熔化、混合,形成厚度为10~1000μm的表面熔化层,熔化层在凝固时获得的冷却速度可达10?~10?℃/s,相当于急冷淬火技术所能达到的冷却速度,又由于熔化层液体内存在着扩散作用和表面张力效应等物理现象,可使材料表面在很短时间(50μs~2ms)内形成具有预定深度及化学成分的表面合金层。
激光表面合金化工艺的最大特点是仅在熔化区和很小的影响区内发生成分、组织和性能的变化,对基体的热效应可减少到最低限度,引起的变形也极小。该种工艺既可满足表面的使用需要,同时又不牺牲结构的整体特性。
熔化深度由激光功率和照射时间来控制。在基体金属表面可形成厚度为0.01~2mm的合金层。由于冷却速度高,使偏析最小,并显著细化晶粒。
(4)激光冲击硬化
当短脉冲(几十纳秒)、高峰值、高功率密度(>10W/cm?)的激光束辐射金属靶材时,金属表面吸收层吸收激光能量并发生爆炸性地汽化蒸发,产生高温(>10000K)、高压(>1GPa)的等离子体,该等离子体受到约束层的约束时,将产生高强度压力冲击波,并作用于金属表面,随后向金属内部传播。当冲击波的峰值压力超过被处理材料的动态屈服强度时,材料表层就产生应变硬化现象,其内部将残留很大的压应力。这种新型的表面强化技术就是激光冲击强化,由于其强化原理类似喷丸,因此也称作激光喷丸。
激光冲击强化具有应变影响层深,冲击区域和压力可控,对表面粗糙度影响小,易于自动化等特点。与喷丸强化相比,激光冲击处理获得的残余压应力层可达1mm,是喷丸强化的2~5倍。而挤压、撞击强化等强化技术只能对平面或规则回转面进行。另外,激光冲击强化能很好地保持强化位置的表面粗糙度和尺寸精度。
(5)激光表面非晶化
激光表面非晶化是利用激光熔池所具有的超高速冷却条件,使某些成分的合金表面形成具有特殊性能的非晶层。与其他非晶化方法比较,激光非晶化可以在工件表面大面积地形成非晶层,而且形成非晶的成分也可扩大。
04 电子束表面处理技术
利用高能电子束轰击材料表面,使其温度升高并发生成分、组织结构的变化,从而达到所需性能的工艺方法,称为电子束表面处理。它是以电场中高速移动的电子作为载能体,电子束的能量密度最高可达10?W/cm?。电子束表面处理的特点是:由于电子束具有更高的能量密度,所以加热的尺寸范围和深度更大;设备投资较低,操作较简单(无须像激光束处理那样在处理前进行“黑化”);因需真空条件,故零件的尺寸受到限制。
1 电子束表面处理技术的原理
电子束就是高能电子流,这些电子是由阴极灯丝产生。带负电荷的电子束高速飞向高电位正极的过程中,经过加速器加速,又通过电磁透镜聚焦,电子束的功率得到提高,再经二次聚焦,其能量密度高度集中,并以极高的速度冲向工件表面极小的面积上,电子束携带的动能大部分转化为热能,所以材料表面的被冲击部分在几分之一微秒内,温度将会升至几千摄氏度,使材料瞬间熔化甚至气化。
2 电子束表面处理技术的设备
电子束表面处理技术的设备由以下五个系统组成:
①电子枪系统发射高速电子流;
②真空系统保证系统所需的真空度;
③控制系统控制电子束的大小、形状、和方向;
④电流系统供给高低压稳压电流;
⑤传动系统控制工作台移动。
3 电子束表面处理技术的特点
①将工件置于真空室中加热,没有氧化、脱碳,表面相变强化无需冷却介质,依靠基体自身的冷却行为,可实现“绿色表面强化”。
②电子束的能量转换率约为80%~90%,能量集中,热效率高,可实现局部相变强化和表面合金化。
③由于热量集中,热作用点小,在加热时形成的热应力小,又由于硬化层浅,组织应力小,表面相变强化畸变小。
④电子束表面处理设备一次性投入比激光少(约为激光的1/3),电子束使用成本也只有激光的一半。
⑤设备结构简单,电子束靠磁偏转动、扫描,不需要工件转动、移动和光传输机构。
⑥电子束表面处理的适用范围宽,可适用于各种钢材、铸铁和其他材料的表面处理,而且也适用于形状复杂的零件。
⑦电子束易激发X射线,使用过程中应注意保护。
4 电子束表面处理技术的分类
电子束表面处理技术的分类如图11所示。

图11 电子束表面处理技术的分类
(1)电子束表面相变强化
对于有马氏体相变过程的金属,其工艺过程的关键是参数控制:电子束斑平均功率密度在10?~10?W/cm?,加热速度为10?~10?℃/s,冷却速度可达10?~10?℃/s。
电子束快速熔凝造成过饱和固溶强化,并形成超细马氏体,硬度增大,表面呈残余压应力,从而提高了材料的耐磨性。
(2)电子束表面重熔处理
电子束重熔可使合金的化学元素重新分布,降低某些元素的显微偏析程度,从而改善工件表面的性能。由于电子束重熔是在真空条件下进行的,有利于防止表面的氧化,因此电子束重熔处理特别适用于化学活性高的镁合金、铝合金等的表面处理。
(3)电子束表面合金化
一般选择W、Ti、B、Mo等元素及其碳化物作为合金元素提高材料耐磨性;选择Ni、Cr等元素可提高材料的抗腐蚀性能;而适当添加Co、Ni、Si等元素能改善合金化效果。
(4)电子束表面非晶化处理
将电子束的平均功率密度提高到10?~10?W/cm?,作用时间缩短至10-?s左右,使金属在基体与熔化的表层之间产生很大的温度梯度,在停止电子束照射后,金属表面快速冷却速率(10?~10?s-?)远远超过常规制取非晶的冷却速率(10?~10?s-?),所获非晶的组织形态致密,抗疲劳及抗腐蚀性能优良。
(5)电子束表面薄层退火
当电子束作为表面薄层退火的热源使用时,所需要的功率密度要较上述方法低很多,以此降低材料的冷却速度。对于金属材料,此法主要应用于薄带的表面处理。另外,电子束退火还成功地应用于半导体材料上。
5 电子束表面强化技术的应用
模具钢经电子束表面强化后,材料的最表层发生熔化,表面重熔层的厚度达到10μm左右,熔化造成其表层显微硬度降低;表面碳化物颗粒溶解,基体固溶铬和能量增加,造成过饱和固溶强化,并形成超细化马氏体,试样显微硬度从955.2HK提高到1169HK,相对耐磨性提高了5.63倍、轰击次数越多,影响区越深,显微硬度提高幅度越大。
05 电火花表面处理技术
电火花表面处理技术的基本原理是储能电源通过电极,以10-2000Hz的频率在电极与零部件之间产生火花放电,并将作为电极的导电材料熔渗到工件表面,形成合金化表面强化层,改善工件表面的物理及化学性能。
电火花表面强化层的性能主要取决于基体材料本身和电极材料,通常用的电极材料有TiC、WC、ZrC、NbC、Cr?C?、硬质合金等。
1 电火花表面处理技术过程
图12是电火花表面处理技术过程示意图。当电极与工件之间的距离较大时,电源经电阻R对电容充电,电极在振动器的带动下向工件靠近,如图12(a)所示;当电极与工件之间的间隙接近到某个距离时,间隙中的空气在强电场的作用下电离,产生火花放电,如图12(b)所示;当电极和工件在发生放电部分的金属局部熔化甚至汽化时,电极继续接近工件并与工件接触,这时火花放电停止,在接触点流过短路电流,使该处继续加热,由于电极以适当压力压向工件,使熔化的材料相互粘接、扩散而形成合金或者新的化合物,如图12(c)所示;电极在振荡器的作用下离开工件,如图12(d)所示。

图12 电火花表面强化过程示意图
(1)高温高压下的物理化学冶金过程。电火花放电所产生的高温使电极材料和工件表面的基体材料局部熔化,气体受热膨胀产生的压力以及稍后电极机械冲击力的作用,使电极材料与基体材料熔合并发生物理和化学的相互作用,电离气体元素如氮、氧等的作用,使基体表面产生特殊的合金。
(2)高温扩散过程。扩散过程既发生在熔化区内,也发生在液-固相界上。由于扩散时间非常短,液相元素向基体的扩散量有限的,扩散层很浅,但是基体与合金层也能达到较好的冶金结合。
(3)快速相变过程。由于热影响区的急剧升温和快速冷却,使工件基体熔化区附近部位经历了一次奥氏体化和马氏体化转变,细化了晶粒,提高了硬度,并产生了残余压应力,对提高疲劳强度有利。
2 电火花表面处理技术的特点
(1)优点
①设备简单,造价低;
②强化层与基体的结合非常牢固;
③工件内部不升温或者升温很低,无组织和性能变化,工件不会退火和变形;
④能耗低,材料消耗少;
⑤对处理对象无大小限制,尤其适合大工件局部处理;
⑥表面强化效果显著;
⑦可用来修复磨损超差的工件;
⑧操作简单,容易掌握。
(2)缺点
①表面强化层较浅,一般深度仅0.02~0.5mm;
②表面粗糙度不会很低;
③小孔、窄槽难处理,表层强化层均匀性连续性较差。
免责声明:本网站所转载的文字、图片与视频资料版权归原创作者所有,如果涉及侵权,请第一时间联系本网删除。
官方微信
《中国腐蚀与防护网电子期刊》征订启事
- 投稿联系:编辑部
- 电话:010-62316606-806
- 邮箱:fsfhzy666@163.com
- 中国腐蚀与防护网官方QQ群:140808414



