摘要
采用BNi-2薄带钎料对1Cr18Ni9Ti进行了钎焊,分析了接头的显微组织、电化学特性、硬度和拉伸性能。通过盐雾腐蚀试验,研究了腐蚀过程中接头组织和力学性能的演变。结果表明,1Cr18Ni9Ti钎焊接头成形良好,焊缝两侧的显微硬度明显高于母材。焊接接头的抗拉强度达到500 MPa。接头焊缝的腐蚀电位高于1Cr18Ni9Ti母材,接头在盐雾环境中发生电偶腐蚀。力学性能测试结果表明,未腐蚀的钎焊接头拉伸试验后断裂发生在带有钎料的母材处,断口分析表明,拉伸过程中接头涂有钎料的母材首先形成多道裂纹,然后扩展到母材发生断裂,具有明显的塑性变形。1Cr18Ni9Ti钎焊接头经过盐雾腐蚀后,接头力学性能下降,拉伸试验后断裂发生在钎焊焊缝处,无塑性变形特征。
关键词: 焊接接头 ; 钎焊 ; 电偶腐蚀 ; 微观组织 ; 力学性能
随着国内航空航天运载装备在近岸和海洋大气条件下的活动频率不断增加,越来越多的装备和材料由于长期暴露在高湿、高盐雾的海洋大气环境下发生失效,钎焊结构广泛应用于这些装备中,要求其在长期服役过程中稳定可靠。不锈钢具有很强的化学稳定性及优良的强度和塑性等力学性能,被广泛应用在航空航天、汽车船舶等多个不同的领域。奥氏体不锈钢中以18-8型不锈钢最具代表性,有着优良的力学和加工性能[1],其中1Cr18Ni9Ti不锈钢属于典型的18-8型不锈钢,它除了有着很强的耐蚀性能外,还有着良好的塑性,易于加工变形,韧性非常好,具有良好的焊接性能,广泛应用于航空、航天、核能和能源等领域。
对不锈钢材料进行焊接时,真空钎焊是一种非常有效的连接手段[2],相比起熔焊和压焊等方法具有加热温度低,对母材的组织和性能影响小,加热均匀,变形和应力小,装配精度高等特点。不锈钢主要的钎焊方式是硬钎焊,镍基钎料在高温下具有良好的润湿性,且力学和耐蚀性能都很好。其中,BNi-2钎料 (BNi82CrSiBFe) 是应用最为广泛的一种镍基钎料,它具有熔化温度较低、流动性好、润湿性强等优点,钎焊接头有良好的高温强度和抗氧化及耐蚀性能[3]。对于不锈钢钎焊接头来说,一般包括有3个区域,分别是扩散区、界面区及钎缝中心区,母材扩散区是由钎料中的B和少量Si向母材扩散而形成,钎缝界面反应区由母材向钎料中溶解,主要组成是固溶体和金属间化合物,钎缝中心区则主要由Ni、Si、Cr等互溶形成Ni基固溶体组成,不同的焊接工艺参数如保温时间、钎焊温度等会对接头的形成相及性能有很大影响[4~6]。
钎焊后接头各区域组织成分及性能都会有差别,使得各区域之间的性质,如电化学特性等出现差异,在与电解质介质接触后导致产生腐蚀电偶,致使发生局部腐蚀,常见的局部腐蚀类型包括有电偶腐蚀、点蚀、晶间腐蚀等[7],高温环境下还会出现热腐蚀,这些都会对接头产生不利影响[8~14]。
本文针对1Cr18Ni9Ti真空钎焊接头开展盐雾环境对其组织与性能的影响研究,结合电化学、组织表征及力学测试观察结构等手段,分析1Cr18Ni9Ti钎焊接头微观组织和力学性能在盐雾环境中的演变规律,为钎焊构件在海洋环境中的推广与应用提供基础数据。
1 实验方法
选用的母材为1Cr18Ni9Ti奥氏体不锈钢,其化学成分如表1所示。真空钎焊选用的钎料为BNi-2镍基非晶薄带钎料,其化学成分如表2所示。1Cr18Ni9Ti奥氏体不锈钢化学成分 (质量分数,%) 为:Cr 18.2,Ni 0.7,Ti 0.6,C 0.08,Si 0.7,Mn 1.9,S 0.021,P 0.033,Fe余量。Bni-22镍基钎料化学成分 (质量分数,%) 为:C 0.05,Si 4.6,B 3.05,Cr 7.2,Fe 2.8,Ni余量。
表1 1Cr18Ni9Ti合金钎焊接头显微硬度 (HV)
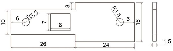
在钎焊前对两块1Cr18Ni9Ti不锈钢母材接触面进行打磨处理,并通过丙酮超声清洗除掉表面油污,烘干后将两块母材对接,通过BNi-2箔带控制钎缝宽度为50 μm,并将BNi-2粉末钎料置于接头两端阶梯处,避免焊接时因间隙填充不满而造成未焊合。试样装配好后将其置于真空炉中进行加热,真空度设为10-3 Pa,在升温速度为10 ℃/min下加热至850 ℃,保温10 min,然后在升温速度为15 ℃/min下加热至1050 ℃,再保温60 min。保温结束后停止加热,在炉内冷却至室温后取出,用于研究腐蚀后力学性能的试样示意图如图1所示,接头设计根据某型的航天产品进行设计。
图1 力学性能试样
金相样品采用SiC砂纸逐级打磨至2000#,再将其表面抛光,最后采用去离子水+乙醇清洗并用冷风吹吹干。将抛光好的金相样品采用FeCl3溶液侵蚀抛光面10 s。采用莱卡金相显微镜观察样品的金相组织形貌。
依据GB/T228-2002,在Zwick/Roell-Z100电子万能材料试验机进行拉伸实验。屈服前的拉伸速率为0.15 mm/min,与之对应的应变速率为0.00025 s-1;屈服后的拉伸速率为1.5 mm/min,对应的应变速率为0.0025 s-1。
采用HV-1000STA显微硬度计测试试样母材和焊缝处的显微硬度,施加载荷为300 g,加载时间为10 s,分别在母材和焊缝处测量5个点,取平均值。
采用5% (质量分数)) NaCl水溶液为腐蚀溶液,其pH值在6.5~7.2间,实验箱体温度为40 ℃,盐雾沉降率为(1.5
0.5) mL/80 (cm2·h),实验周期为1/3/6/10/15/20 d。盐雾试验使用CW1202型号盐雾箱,试验箱容积为200 L,可用于连续盐雾或间歇喷雾/干燥循环试验。
采用CS350M型号电化学工作站测试样品的动电位极化曲线,电解质溶液为5% (质量分数) NaCl溶液。采用三电极体系进行电化学测试,其中,饱和甘汞电极作为参比电极 (相对于标准氢电极的电位0.241 V),石墨棒为对电极。将三电极体系在溶液中稳定1 h后,进行动电位极化测试。动电位极化测试的电位扫描范围为相对于开路电位的-0.5~+0.5 V,扫描速率为1 mV/s。动电位极化测试均在室温℃进行,每组测试重复3次以确保结果准确。
采用XMU-BY-LG微区电化学工作站在室温下对不锈钢钎焊试样进行了表面微区电位分布的测量,测试溶液为10% (质量分数) FeCl3溶液,扫描范围为2000 μm×2000 μm,扫描频率为0.5 Hz,探针针尖与待测样品表面之间的距离控制在50 μm上下,避免直接接触。
2 结果与分析
2.1 钎焊接头的电化学腐蚀
由图2a可知,1Cr18Ni9Ti、BNi-2钎料以及接头材料的极化曲线变化相似,可以明显看出试样在5%NaCl溶液中均可发生钝化。图2b-d中分别给出了3种材料的点蚀电位、维钝电流密度和腐蚀电位。由图2b可知,1Cr18Ni9Ti和BNi-2钎料的点蚀电位高于接头材料,说明钎焊后材料的抗点蚀性能降低。BNi-2钎料的点蚀电位高于1Cr18Ni9Ti钎焊接头,意味着BNi-2钎料的抗点蚀能力高于接头材料。此外,BNi-2钎料的腐蚀电位高于1Cr18Ni9Ti,说明BNi-2钎料的耐蚀性能高于基体。
图2 3种试样在5%NaCl 溶液中测量的 Tafel 极化曲线结果
图3为1Cr18Ni9Ti合金钎焊焊接接头在3.5%NaCl中的微区电化学结果。由图可知,焊缝的电位高于两侧基体的电位,说明焊缝的耐蚀性明显好于基体,这与1Cr18Ni9Ti、BNi-2钎料的电化学测试结果保持一致。

图3 1Cr18Ni9Ti合金钎焊焊接接头在5%NaCl溶液中的微区电化学结果
2.2 1Cr18Ni9Ti合金钎焊试样微观组织
1Cr18Ni9Ti合金钎焊试样金相显微组织如图4所示。由图4可知,母材组织主要由奥氏体、少量铁素体和部分孪晶组成,晶粒尺寸在15-20 μm,焊缝宽度约为100 μm。
图4 1Cr18Ni9Ti合金钎焊试样焊后显微组织
接头成形良好,无明显微观空洞,焊缝主要由镍基固溶体组成,未有金属间化合物相形成,钎料与母材发生明显的扩散,1Cr18Ni9Ti与钎料的界面发生显著的反应,钎料中的Si富集在焊缝中,少量向母材中扩散焊。少量的Fe向焊缝中扩散,Cr在焊缝附近的晶界中析出,在扩散区域的晶粒较母材有所长大,如图5a和b所示。
图5 1Cr18Ni9Ti合金钎焊接头元素分布
1Cr18Ni9Ti钎焊试样母材的维氏硬度为 (167.3±2.8) HV,焊缝维氏硬度为 (283.0±11.5) HV,焊缝的显微硬度均高于母材,详见表1。
2.3 1Cr18Ni9Ti钎焊接头盐雾实验后的形貌
在1、3、6、10、15、20 d盐雾实验后采用激光共聚焦显微镜观察去除表面腐蚀产物的1Cr18Ni9Ti焊接接头形貌,如图6所示。在任何腐蚀时间内,焊接接头的高度均高于母材,说明焊接接头的耐蚀性高于母材,这与电化学测量结果相吻合。图7给出了盐雾腐蚀后钎焊接头与1Cr18Ni9Ti母材的高度差。随着时间的增加,焊缝和母材的高度差值逐渐增加,由腐蚀1 d的1.5 μm逐渐增加至3 μm。此外,在焊缝与母材的交界部位,靠近母材的部位存在许多点蚀坑,且点蚀坑的数量随腐蚀时间的延长而逐渐增加。
图6 1Cr18Ni9Ti钎焊接头盐雾腐蚀后的3D形貌
图7 1Cr18Ni9Ti钎焊接头盐雾腐蚀后的高度差
2.4 1Cr18Ni9Ti钎焊试样腐蚀前后的拉伸性能
1Cr18Ni9Ti钎焊试样腐蚀前的拉伸曲线如图8a所示。试样1和试样2的抗拉强度达到500 MPa以上,屈服强度均约为300 MPa。盐雾腐蚀后可见接头的拉伸性能随着腐蚀时间的增加而降低,如图8b和c所示。在盐雾腐蚀10 d右,说明盐雾腐蚀对1Cr18Ni9Ti钎焊接头性能影响较为明显,会出现腐蚀导致力学性能降低。经过拉伸实验后的1Cr18Ni9Ti合金钎焊试样如图9a所示。试样1和试样2的断裂发生在筋条与钎料接触处,试样断裂前发生明显的塑性变形,试样最终断裂可能是在拉伸过程中钎料先发生开裂形成裂纹源,然后扩展到母材,使焊后试样在发生一定塑性变形后突然断裂。腐蚀后的拉伸试样,试样出现明显腐蚀痕迹且发生在焊缝处与母材之间,经过拉伸实验后,试样断裂均发生在焊缝处与母材之间的截面处,钎焊焊缝处未发生明显的塑性变形,钎料与母材呈现整体脱离,钎角未像未腐蚀的试样呈现多段断裂的方式,如图9b和c所示。
图8 1Cr18Ni9Ti钎焊接头拉伸试样应力-应变曲线
图9 1Cr18Ni9Ti钎焊在腐蚀前、腐蚀10 d和腐蚀20 d时的拉伸样品的宏观形貌
3 结论
(1) 采用钎料和匹配的焊接工艺焊接1Cr18Ni9Ti,能够获得较高拉伸强度的钎焊接头,接头强度与母材等强。
(2) 1Cr18Ni9Ti和BNi-2钎料的点蚀电位高于接头材料,说明钎焊后材料的抗点蚀性能降低。BNi-2钎料的腐蚀电位高于1Cr18Ni9Ti,说明BNi-2钎料的耐蚀性能高于基体。微区电化学测试结果同样证明,钎焊焊缝的腐蚀电位高于两侧基体。
(3) 1Cr18Ni9Ti在盐雾实验后,由于电偶腐蚀效应,钎焊焊缝与母材间产生腐蚀,且焊缝的耐蚀性高于母材的耐蚀性。盐雾实验后焊接接头的拉伸性能下降为300 MPa,断裂发生在钎焊焊缝区域。
参考文献
1 Zhang Q S. Stainless Steel Welding Technology [M]. Beijing: China Machine Press, 2015: 1
1 张其枢. 不锈钢焊接技术 [M]. 北京: 机械工业出版社, 2015: 1
2 Gu H M, Tang X H. Process characteristics of vacuum brazing for stainless steel and its application [J]. Hot Work. Technol., 2011, 40(23): 164
2 谷海明, 唐新华. 不锈钢真空钎焊工艺特点及其应用 [J]. 热加工工艺, 2011, 40(23): 164
3 Zhang Q Y, Zhuang H S. Handbook of Brazing and Soldering [M]. Beijing: China Machine Press, 2017: 233
3 张启运, 庄鸿寿. 钎焊手册 [M]. 北京: 机械工业出版社, 2017: 233
4 Yang M X, Jia Z D, Lin X C, et al. Vacuum brazing 0Cr18Ni9 stainless steel pipe to itself with BNi-2 filler alloy [J]. J. Harbin Inst. Technol., 2016, 48 (5) : 184
4 杨敏旋, 贾振东, 蔺晓超 等. 采用BNi-2钎料真空钎焊0Cr18Ni9不锈钢管材 [J]. 哈尔滨工业大学学报, 2016, 48 (5) : 184
5 Jiang W C, Gong J M, Tu S T. Effect of holding time on vacuum brazing for a stainless steel plate-fin structure [J]. Mater. Des., 2010, 31: 2157
doi: 10.1016/j.matdes.2009.11.001
6 Jiang W C, Gong J M, Tu S T. Effect of brazing temperature on tensile strength and microstructure for a stainless steel plate-fin structure [J]. Mater. Des., 2011, 32: 736
doi: 10.1016/j.matdes.2010.07.032
7 Iversen A, Leffler B. Aqueous corrosion of stainless steels [J]. Shreir's Corros., 2010, 3: 1802
8 Yuan Y, Zhou X, Li S. Experimental study on intergranular corrosion resistance of 304L stainless steel vacuum brazed joints [J]. Hot Work. Technol., 2021, 50 (11) : 63
8 袁 野, 周 希, 李 莎. 304L不锈钢真空钎焊接头晶间腐蚀性能试验研究 [J]. 热加工工艺, 2021, 50 (11) : 63
9 Zhao G X, Chen J S, Wang Q Z, et al. Microstructure and Electrochemical Corrosion Properties of 316L stainless steel joints brazed with BNi5 [A]. ChenSB, ZhangYM, FengZL. Transactions on Intelligent Welding Manufacturing [M]. Singapore: Sprin-ger, 2019: 137
10 Penyaz M, Otto J L, Popov N, et al. Microstructure influence on corrosion resistance of brazed AISI 304L/NiCrSiB joints [J]. Met. Mater. Int., 2021, 27: 4142
doi: 10.1007/s12540-021-00974-z
11 Wang X Y, Huang F, Liu H X, et al. Corrosion resistance of welded joints of Q690 bainite bridge steel in simulated rural atmosphere [J]. J. Chin. Soc. Corros. Prot., 2022, 42: 826
11 王昕煜, 黄 峰, 刘海霞 等. Q690贝氏体桥梁钢焊接接头在模拟乡村大气中耐蚀性能研究 [J]. 中国腐蚀与防护学报, 2022, 42: 826
doi: 10.11902/1005.4537.2021.258
12 Cheng P, Liu J, Mu W G, et al. Corrosion behavior of weld joint of 690 MPa weathering bridge steel in simulated industrial atmosphere [J]. J. Chin. Soc. Corros. Prot., 2023, 43: 95
12 程 鹏, 刘 静, 牟文广 等. 690 MPa级耐候桥梁钢焊接接头在模拟工业大气环境下的耐蚀性研究 [J]. 中国腐蚀与防护学报, 2023, 43: 95
13 Mirzaei S, Binesh B. Microstructure evolution mechanism and corrosion behavior of transient liquid phase bonded 304L stainless steel [J]. Metals Mater. Int., 2021, 27: 3417
doi: 10.1007/s12540-020-00671-3
14 Kazazi A, Ekrami A. Corrosion behavior of TLP bonded stainless steel 304 with Ni-based interlayer [J]. J. Manuf. Processes, 2019, 42: 131
doi: 10.1016/j.jmapro.2019.04.029
免责声明:本网站所转载的文字、图片与视频资料版权归原创作者所有,如果涉及侵权,请第一时间联系本网删除。
官方微信
《腐蚀与防护网电子期刊》征订启事
- 投稿联系:编辑部
- 电话:010-62316606
- 邮箱:fsfhzy666@163.com
- 腐蚀与防护网官方QQ群:140808414












